Vicolo Series at Nexton
New Leaf Builders
Summerville, SC
June 2021
View All Images
View All Images
close
Roman-Inspired Villas Bring Courtyard Living to the Carolinas
Photography by Nathan Gregory of PlanOmatic
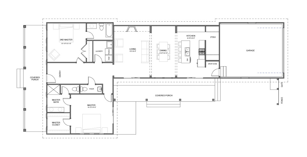
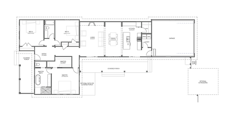
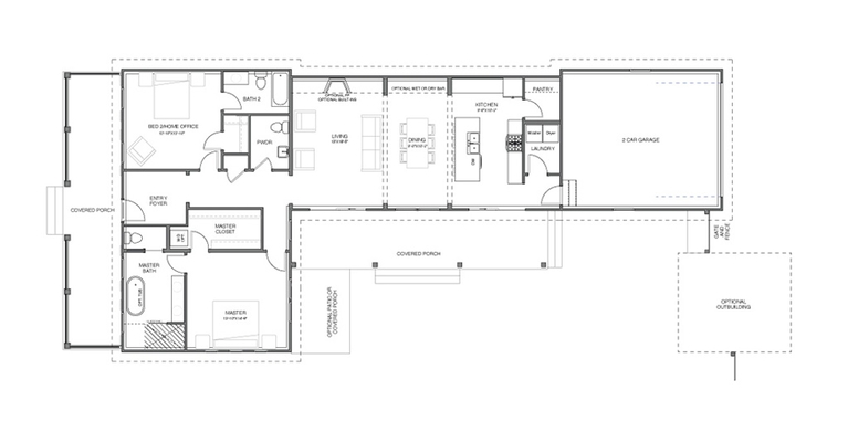
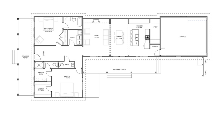
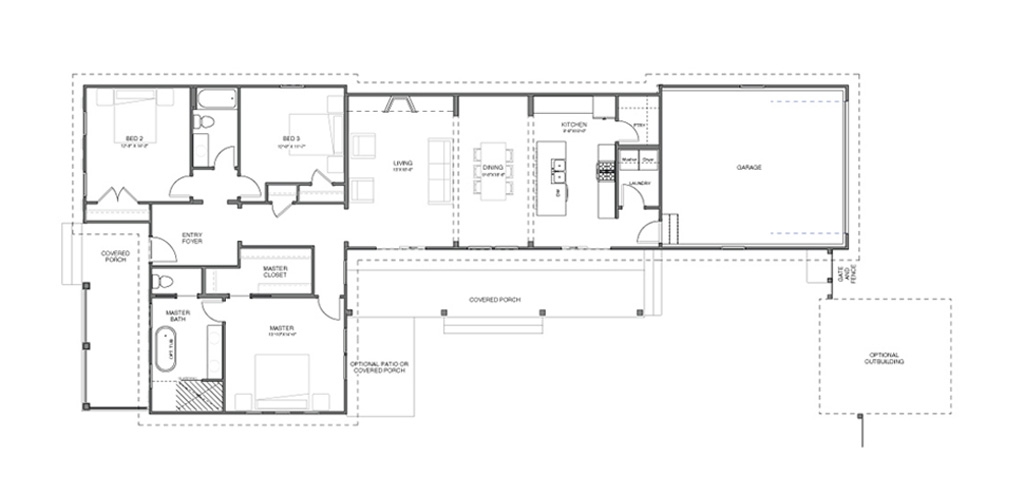
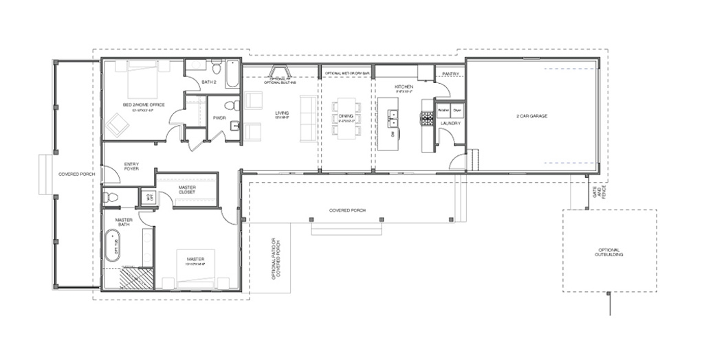
- Every home is designed around a private side courtyard.
- Front-porch lifestyles encourage connection among families and neighbors.
- Outbuildings included with every home offer lifestyle options with a gazebo, potter’s shed, cabana, or casita for the perfect guest house.
- As New Leaf is both a custom and community builder, home buyers benefit from a wide array of high-end materials to customize their interior finishes.
- Product type
- Single-family detached
Project Stats
close
- Price as of June 2021
- $400,000/ starting at
- Square footage (min)
- 1,676-2,550
- Lot size
- 6,600/ square feet average
- Density
- 4.2
- Sales start date
- Fall 2020
- Total homes
- –
- Sales as of
- Upon opening quickly sold out of homesites
- HOA
- –
- Target market
- A wide variety of consumers including multigenerational families
- Unique selling position
- These creatively designed homes bring courtyard living to the Carolinas while keeping the classic front porch charm.
Consultants
Builders
New Leaf Builders
Architects
Holden Architects
New Leaf Builders
Interior designers
Southern Staging by Walton Designs
Landscape Architects
–Developers
–JBREC Consultant
Location
222 Carefree Way
Skip Google Map