FoundryLine

FoundryLine

Forino Photography
Product type
Apartment
PROJECT STATS
Project Stats close
Price as of October 2025
$1,599/ starting at
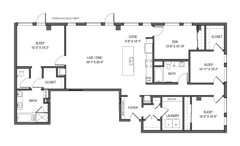
Square footage (min)
506-1,964
Lot size
/ square feet average
Density
Sales start date
Total homes
348
Sales as of
HOA
Target market
Young professionals and mature couples

Consultants

Builders

Architects

Interior designers

Landscape Architects

Developers

JBREC Consultant

Chelsea Scott
Vice President
Englewood, CO

Location

3750 Blake Street
Phone number (866) 502 - 6318
Region Southwest
State Colorado
City Denver
Zip Code 80205
Skip Google Map