The Edith

C.W. Urban

Contemporary Infill Townhomes Inspired by the Surrounding Neighborhood​

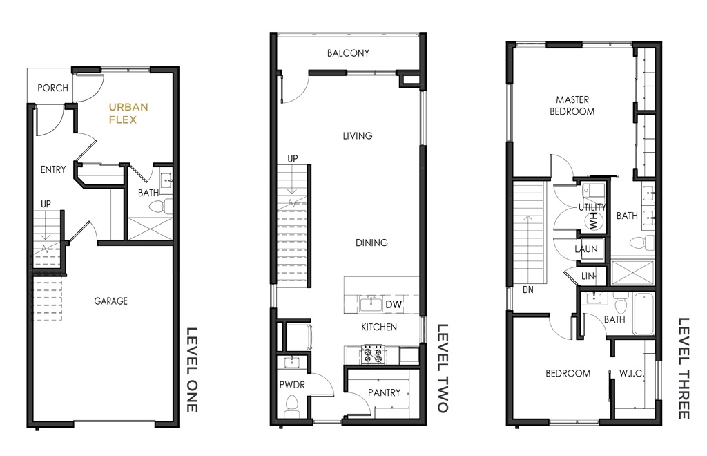
  • Ground level flex space offers lots of living opportunities for this attached offering, such as a formal office and a suite for Airbnb.​
  • Mixes plan widths and depth in multiple buildings to make best use of the site.​

  • These homes include a mix of garage sizes with single-car, two-car tandem, and two-car side-by-side.​

  • Outdoor living opportunities are integrated into the home on the second and sometimes third levels.​

Product type
Townhome
PROJECT STATS
Project Stats close
Price as of October 2019
$400,000/ starting at
Square footage (min)
1,545-1,964
Lot size
/ square feet average
Density
23
Sales start date
March 2019
Total homes
23
Sales as of
21 as of 10/19
HOA
$200 per month
Target market
Lifestyle buyers, but many are often younger
Unique selling position
A more attainable offering in the midst of Salt Lake City with easy access to entertainment, restaurants, culture, work, and even the mountains.

Consultants

Builders

Architects

Interior designers

Landscape Architects

Developers

JBREC Consultant

Kristin Matthews
Senior Vice President
Salt Lake City, UT

Location

1710 S. West Temple
Phone number
Region Southwest
State Utah
City Salt Lake City
Zip Code 84115
Skip Google Map